資料ダウンロード(無料)

目的別に情報収集したい方向け
建物タイプ
マンション
広さ
61.6m²
築年月
1980年09月
リノベ費用
1000万 ~ 1500万円
居住人数
4人
Before
After


建物タイプ
マンション
広さ
61.6m²
築年月
1980年09月
リノベ費用
1000万 ~ 1500万円
居住人数
4人
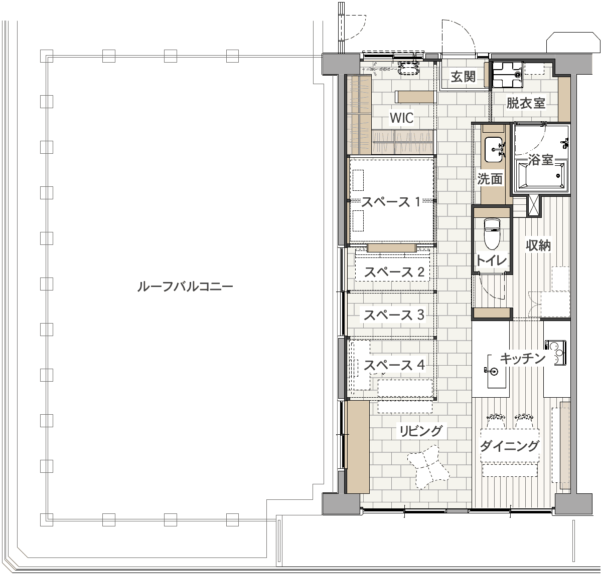
将来予想されるライフステージの移り変わりに備え、柱材で組み上げたフレームで「部屋のアウトライン」を設け、間取りの作り替えを容易にしました。フレームはデザイン上の見せ場にもなっています。その時々で部屋の使い方を考えたり、模様替えを楽しんだりできる自由度が魅力です。
Before

After

Before Photo

01/01

家を買おうと思ったキッカケは?
<ご主人> 第二子が産まれ、以前の賃貸物件が手狭になったことがキッカケです。 私は賃貸にもメリットがあると思い、購入にあまり前向きではありませんでした。 でも妻にはこだわりがあり、おしゃれな暮らしがしたいという気持ちが強かったため、購入について考えるようになりました。
住宅購入にあたり不安はありましたか?
<ご主人> 「家を買って損をしたくない」という気持ちが強くありました。 ファイナンシャルプランナーさんのライフプランニングを真似して、予算を自分でも算出してシミュレーションしてみたりしました。
その不安はゼロリノベが関わることで解消されましたか?
<ご主人> ゼロリノベさんが紹介してくださるファイナンシャルプランナーさんに、安心予算を提示していただけたことで解消されました。妻の試算は甘々だったんですよ(笑) <奥さま> それでも私の試算よりも、FPさんによる安心予算の方がだいぶ高かったので期待が高まりました(笑)
注文住宅や新築マンションではなく中古×リノベーションを選んだ理由は?
<ご主人> 最初は新築マンションを見に行きましたが、駅から30分以上かかるのに高額で、現実的ではないと思い逆算して中古に。 そのまま住むことも検討しましたが、リノベーション済みでも気に入る物件はありませんでした。 そこで妻がフルリノベーション会社を探してゼロリノベさんを見つけ、そのままお願いすることにしました。
ゼロリノベの決め手は?
<ご主人> 私は無駄なことにお金をかけたくないので、セミナーでお話されていた、「身の丈に合わないものにお金をかけるよりも、自分の満足できるものにお金をかけた方が良い」ということや、「家を買うことで人を不自由にしたくない」という代表のお言葉に共感したからです。
物件探しはいかがでしたか?
<ご主人> 日当たりが良いことと、ルーフバルコニーがあることが絶対条件でした。条件を多く設定するほど物件数が限られてしまいますが…。 この部屋もエリアで絞り込んだとき、4件程度しか引っかからず、内見もしたのですが、リノベーションされた物件ばかりでした。 この部屋は妻が毎日物件情報サイトを見ていて、公開後すぐに見つけたのですが、買取再販業者からの問い合わせが多かったようで、すぐに情報が消されてしまったんです。 <奥さま> すぐに消えてしまった理由と、内見ができないかを、おうちナビゲーターさんにご相談したら、なんとか手配してくださったんです。 <ご主人> おうちナビゲーターさんのスピード感のある対応には本当に助けられたよね。
設計打ち合わせでリクエストしたことは?
<ご主人> 当時既に子どもが2人いましたが、この先何人になるかわからず、また子ども部屋が必要になるかもわからないので、間取りを自由に変えられるような工夫をしてほしいとお願いしました。 <奥さま> 漠然と、オシャレな家にしたいと思ってはいたものの何もイメージがなかったので、おうちプランナーさんはやりづらかったと思います(笑) Instagramのスクリーンショットを共有したら、好みのテイストを汲んでくださいました。
実際にお住まいになってみて特に気に入っているところは?
<ご主人> 私はキッチンが気に入っていて、毎日料理をしています。 キッチンの型やデザインはプランナーさんにお任せしたのですが、本当に満足しています。 <奥さま> 可変性のアイデアとして提案していただいた「アウトライン」は、最初は東屋を連想して私の好みとは違う和風な家になるのではないかと心配していました。 でもさっぱりとした色合いの中にあると自然と馴染んで、フランスのシャンゼリゼ通りにいるような気分が味わえます(笑) 寝室とリビングの間仕切りは、こもり感があるのに、朝は開口から光が入って気持ちよく目覚めることができますし、遊びに来た子どもたちも顔を出したり乗り越えたりして大人気です。
中古×リノベを検討している方へ先輩としてアドバイスするなら?
<ご主人> 大満足です。既存の物件とは違って間取りを自由につくることができますし、仕上げや建材、素材などたくさんの選択肢の中から選んでオリジナルの住まいをつくることができるので、やってよかったと思っています。 ゼロリノベさんでは、自分たちの引き出しにはないアイデアを提案してくださるので安心して進めることができました。 <奥さま> ゼロリノベさんは施工実績がたくさんあって、「この人はこんな家族構成でこの広さにして、こういう選択をしたのか〜」って、想像しながら見るのが楽しかったよね。

間取りを自由に変えられるよう、スギ材で組んだアウトライン。

子どもたちの様子を見守りながら作業ができる対面キッチン。

キッチンは料理好きのご主人が快適に作業できるII型。

洗面台や寝室、トイレにアクセントを忍ばせ、空間ごとに遊び心を取り入れた。

















Before

After

Before Photo
